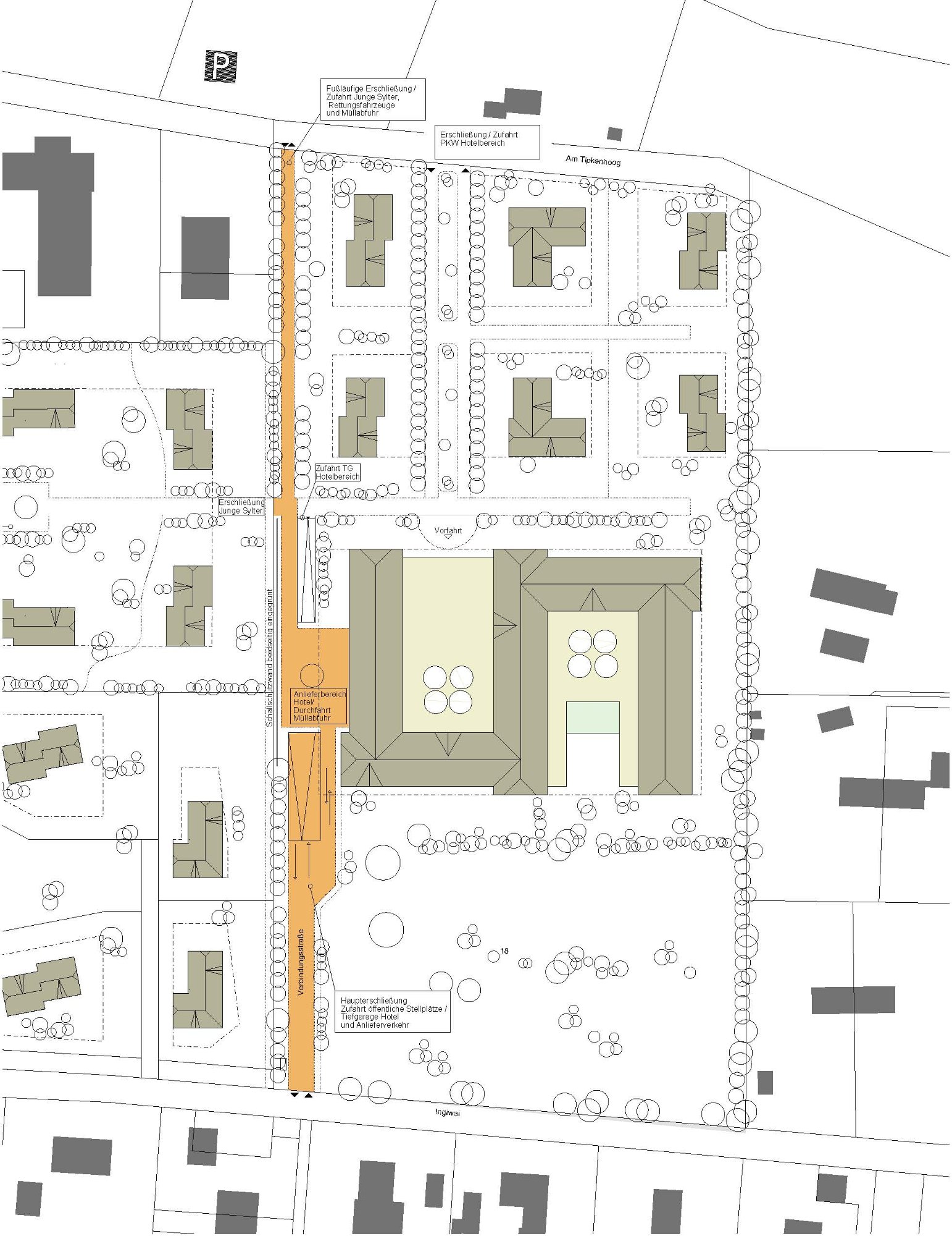
Hotel Severin’s Sylt
| Location | Am Tipkenhoog, Keitum/Sylt |
| Client | Zech Group |
| Design | IGP Projekt GmbH |
| Execution time | 2003-2007 |
| Construction costs | 120 Mio. EUR |
| Service | Project management, LP 1-2 |
| Project leader | Gerhild Steinmeier |
| Projektbeschreibung | Mehr Infos |
Severin’s Sylt Resort and Spa
The IGP Ingenieur AG planned the construction of a comfortable hotel and apartment complex, which is nestled in the coastal landscape Keitum on Sylt.
Around 90 rooms and apartments were realized. The hotel is part of the Zech Group and operates under the name Severin’s Sylt Resort and Spa.