CarLoft Living
| Location | Reichenberger Straße, Berlin |
| Client | TOPOS Paul-Lincke-Höfe GmbH & Co. KG |
| Design | Manfred Dick Architekten |
| Execution time | 2006 |
| Size GFA / NFA | 4.650 m² / 3.329 m² |
| Construction costs | 8,5 Mio. EUR |
| Service | Project management, LP 5-9 |
| Project leader | Gerhild Steinmeier |
| Projektbeschreibung | Mehr Infos |
Project description
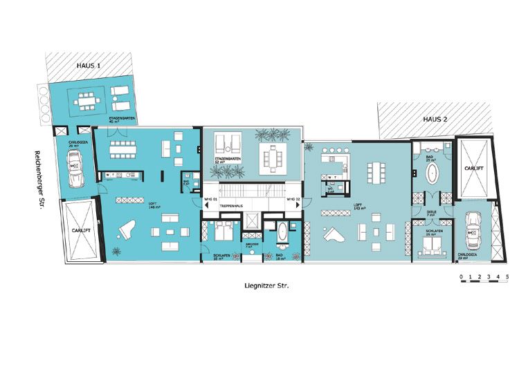
New construction of a residential building with integrated car lift. The project near the Paul-Linke-Ufer is the first CarLoft project ever.
The starting point of the planning was the location of the property at an intersection with a difficult groundwater situation. Since the installation of a large underground car park was therefore not possible, the CarLoft concept offered the opportunity to accommodate the required parking areas on the upper levels of the new building. At the same time, the trees could be preserved because the resulting courtyard did not have to be sealed.
The project was completed in 2010. It offers eleven new lofts and a commercial unit. The total area of the units is 3,329 square meters, the clear ceiling height of the individual lofts is between three and three and a half meters.